Et si un seul appartement pouvait raconter deux histoires de vie ?
À Romans-sur-Isère, à deux pas de la Collégiale Saint-Barnard, ce projet est né d’un constat simple :
un volume exceptionnel… sous-exploité.
Un grand appartement, baigné de lumière, développé sur plusieurs niveaux —
un plateau principal, un demi-niveau et une mezzanine —
offrait un potentiel rare en cœur de ville.
L’ambition des maîtres d’ouvrage ?
Valoriser ce bien
Créer deux logements distincts
S’inscrire dans une logique de rénovation responsable
Grâce au dispositif Loc’Avantages, une partie des travaux est accompagnée, permettant de redonner vie à ce patrimoine tout en maîtrisant l’investissement.
Le projet architectural s’est construit autour d’un équilibre :
respecter l’existant tout en révélant son potentiel.
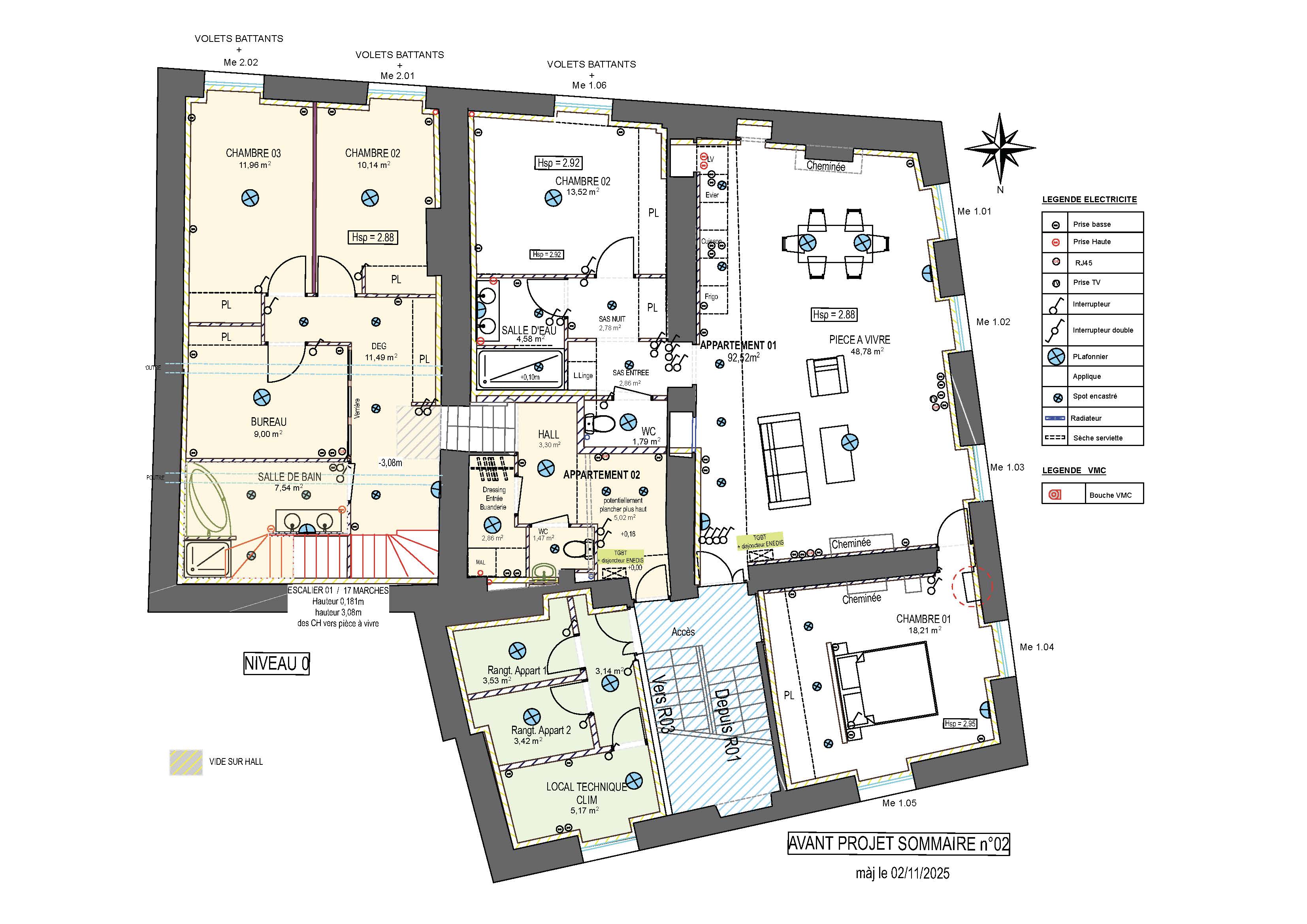
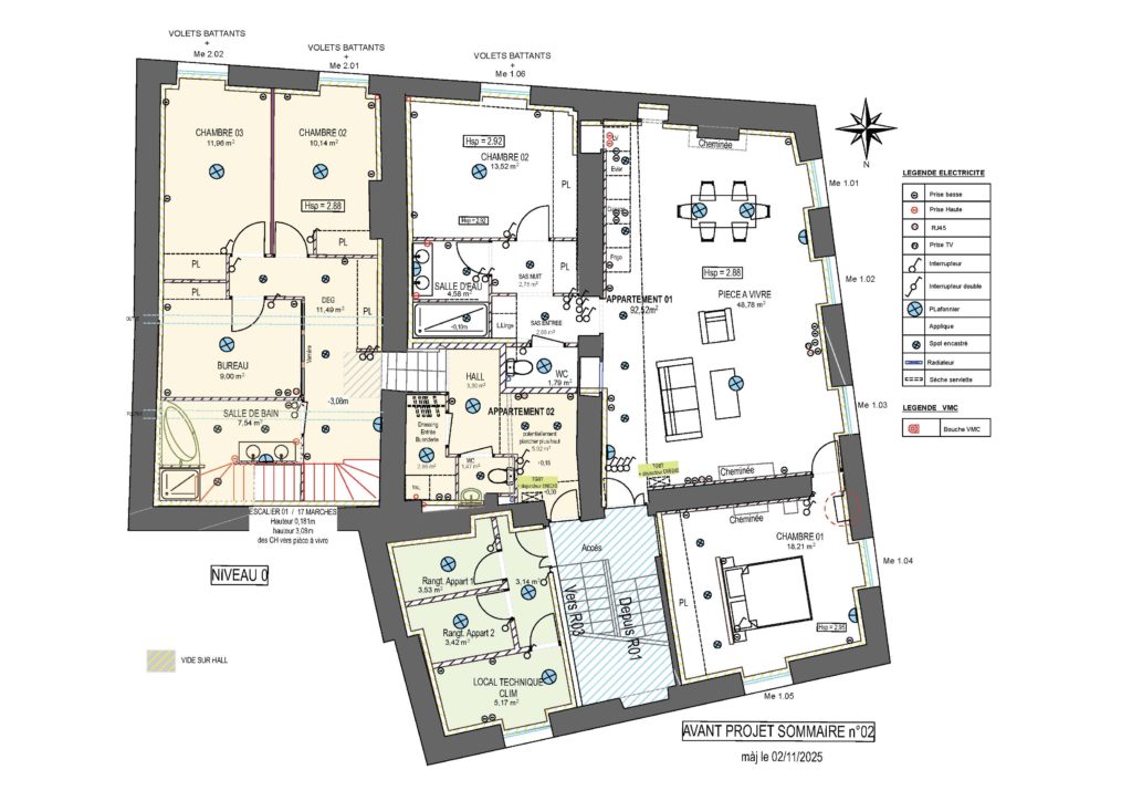
Un premier appartement, de plain-pied, propose un espace confortable avec deux chambres, pensé pour un usage simple et fonctionnel
Un second logement, plus atypique, se déploie cette fois sur quatre plateaux distincts :
- un niveau d’entrée / hall
- un niveau dédié aux chambres enfants et au bureau
- une grande pièce de vie en partie supérieure
- et une mezzanine accueillant la chambre parentale, baignée de lumière et ouverte sur le volume
Ce jeu de niveaux crée une véritable expérience spatiale, entre intimité et générosité des volumes.
Un soin particulier a été apporté aux performances du projet :
- isolation thermique renforcée vis-à-vis de l’extérieur
- traitement acoustique entre les lots pour garantir confort et tranquillité
- remplacement des menuiseries dans le respect des exigences des Architectes des Bâtiments de France
Résultat :
deux logements modernes, lumineux et confortables…
inscrits dans leur époque, tout en respectant leur environnement patrimonial.
Réhabiliter, ce n’est pas seulement transformer…
c’est révéler et structurer intelligemment l’espace.
Travailler les volumes plutôt que les contraindre
Penser le confort thermique et acoustique dès la conception
Donner une identité forte à chaque logement
Pour mieux comprendre l’organisation et les choix spatiaux,
je vous joins ci-après un plan partiel du projet en phase dossier de consultation.
